The Bürgerzentrum Kolpinghaus Brilon is available for theater, concerts, exhibitions, trade fairs and all other cultural events as well as for conferences, congresses, seminars and especially for celebrations and parties. You can use the building as a whole or individual rooms, e.g. for one-day or multi-day events.
The communication, sound and stage technology is completely at your disposal.
Audiovisual conference equipment (projector + sound system)
Projector (one fixed, one mobile HDMI-capable)
Flipchart
Internet connection possible
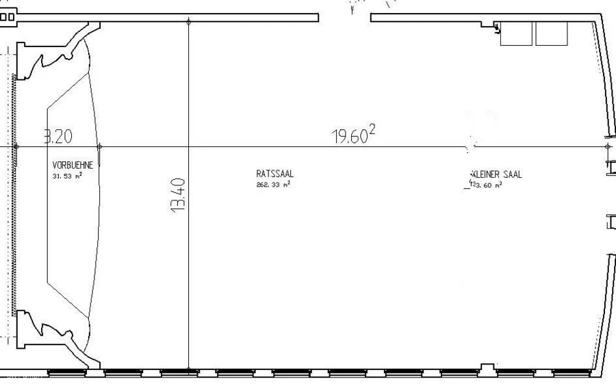
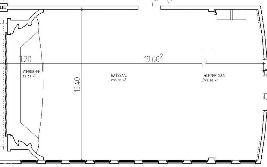
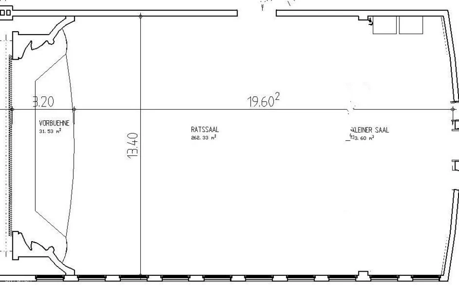
Conference room (room for 50 to 379 with rows of seats. Up to 80 people with parliamentary table seating)
Congress center
Speakers (5x5 m; 2.5x2.5m and 2x2m)
Screen
Overhead projector
Pin board
Podium/stage
Lectern
Conference capacities:
Gallery room up to max. 15 people (approx. 30m²)
small hall up to max. 30 persons (approx. 73m²)
large hall up to max. 304 persons (approx. 282m²)




