Het Bürgerzentrum Kolpinghaus is beschikbaar voor theater, concerten, tentoonstellingen, beurzen en alle andere culturele evenementen, maar ook voor conferenties, congressen, seminars en vooral voor feesten en partijen. Je kunt het gebouw in zijn geheel of in afzonderlijke zalen gebruiken, bijvoorbeeld voor eendaagse of meerdaagse evenementen.
De communicatie-, geluids- en podiumtechnologie staat volledig tot je beschikking.
Audiovisuele vergaderapparatuur (projector + geluidsinstallatie)
Projector (één vaste, één mobiele HDMI-geschikt)
Flipchart
Internetverbinding mogelijk
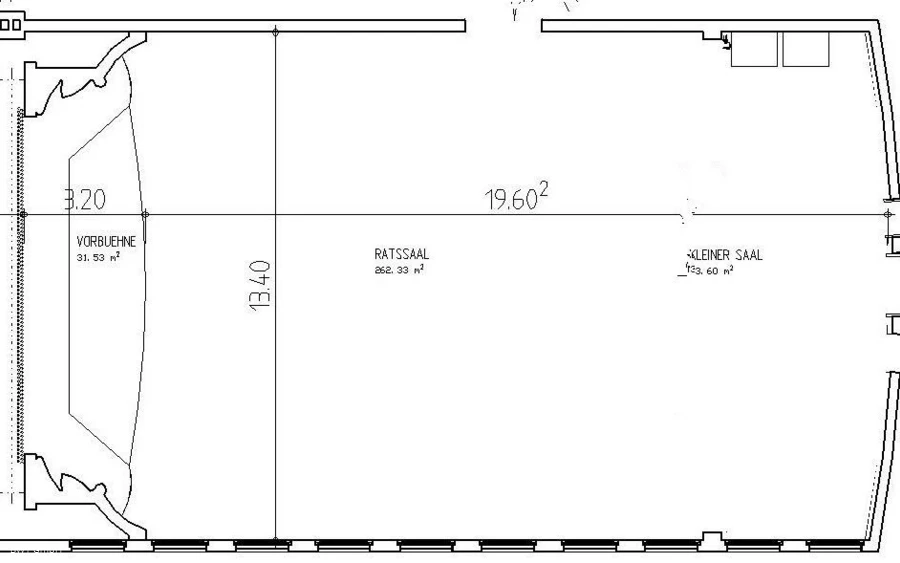
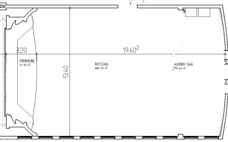
Conferentieruimte (ruimte voor 50 tot 379 met zitrijen. Tot 80 personen met parlementaire tafelopstelling)
Congrescentrum
Luidsprekers (5x5 m; 2,5x2,5m en 2x2m)
Scherm
Overheadprojector
Prikbord
Podium/podium
Lessenaar
Conferentiecapaciteiten:
Galerieruimte tot max. 15 personen (ca. 30m²)
kleine zaal tot max. 30 personen (ca. 73m²)
grote zaal tot max. 304 personen (ca. 282m²)





